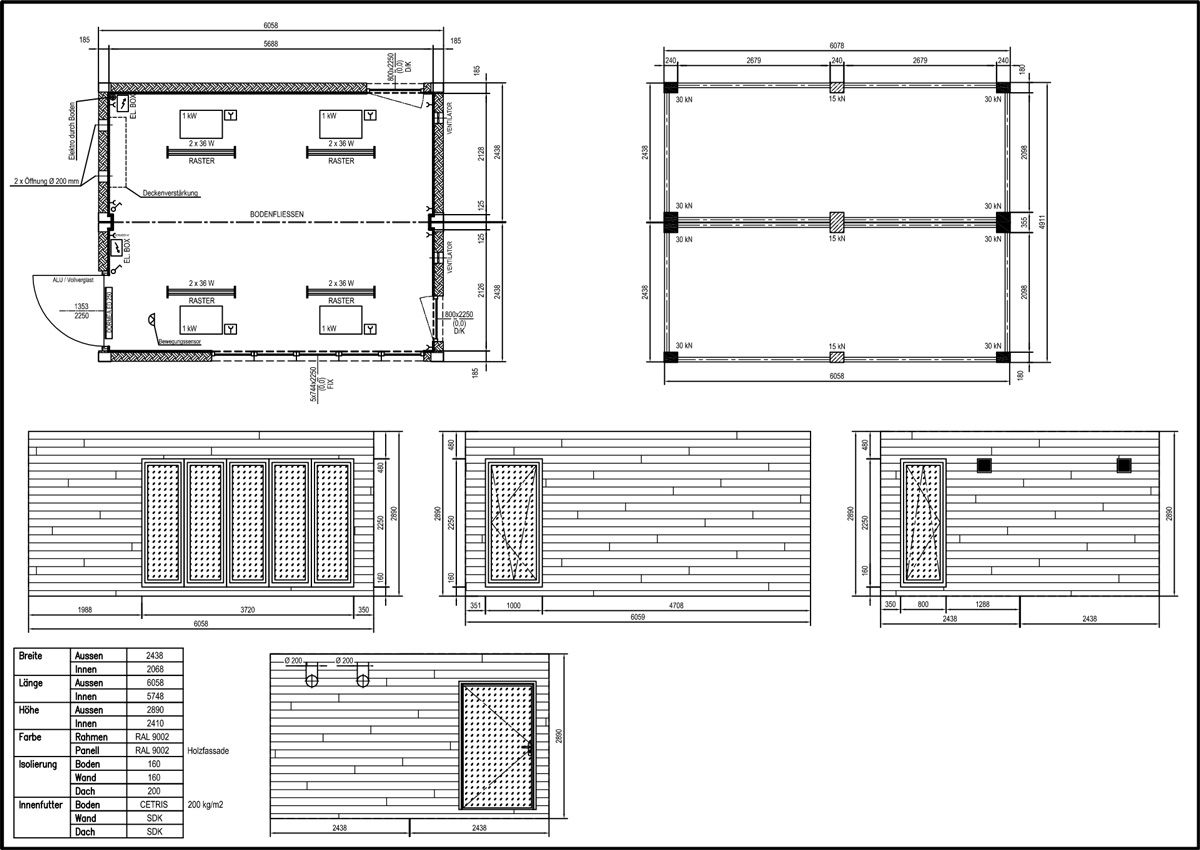
Raucherkabine für Industriekunden in Hamburg
Besonderes:
- Abluftanlage mit Wärmetauscher
- bodentiefe Fenster
- Alueingangstür Fliesenboden
- verputzte Wände
- Außenhülle sibirische Lärche.
Zudem: Isolierung gem. ENEV, Deckenheizungen elektrisch, Infrarotwärme, Akustikdecke.
-
© ARS: Raucherkabine für Industriekunde in Hamburg
Raucherkabine für Industriekunde in HamburgRaucherkabine
-
© ARS: Raucherkabine für Industriekunde in Hamburg
-
© ARS: Raucherkabine für Industriekunde in Hamburg
-
© ARS: Raucherkabine für Industriekunde in Hamburg
-
© ARS: Raucherkabine für Industriekunde in Hamburg
Fotos der Rauchercontaineranlage nach erfolgter Montage im Herbst 2017:
-
© ARS: Rauchercontainer mit Außenhülle aus sibirischer Lärche
-
© ARS: Rauchercontainer mit bodentiefen Fenste
-
© ARS: Rachercontainer mit 2,5 m hohem Innenraum
-
© ARS: Rauchercontainer mit elektrischer Deckenheizung und Infrarotwärme
-
© ARS: Rauchercontainer mit Isolierung gem. ENEV
Abmessungen
Weitere Abmessungen: 2 Module zu je 6 x 2,5 m. Gesamtlänge 6055 mm Gesamtbreite 5000 mm Innenhöhe 2500 mm
Projektdaten
Rahmen: n/a Boden: n/a Wände: n/a Dach: n/a Licht: n/a Steckdosen: n/a Sicherungskasten: n/a Elektroversorgung: n/a Fassade: n/a Sanitärinstallation: n/a Abwasserentsorgung: n/a Wasserversorgung: n/a Fenster: n/a Außentür: n/a Außenrolladen: n/a Vertikale Montage: n/a
Bauvorhaben
Bauvorhaben
Bauherr
Bauzeitraum
Bauleistung
Referenz in Hamburg
Weitere Referenzen
Jetzt anfragen
Acker Raum-Systeme GmbH
E-Mail:
Finanzierung
Container- und Modulbau Projektbeispiele

© ARS
Funktionsgebäude mit Außentrppe für Industriebetrieb in Baden-Baden
Bauherr: Industriebetrieb in Baden-Baden

© ARS
Fahrzeugunterstand für Feuerwehrwache in Uetersen
Bauherr: Finnischer Papierkonzern

© ARS
BV Baubüro in Uchte
Bauherr: Städtischen Abfallentsorger Uchte